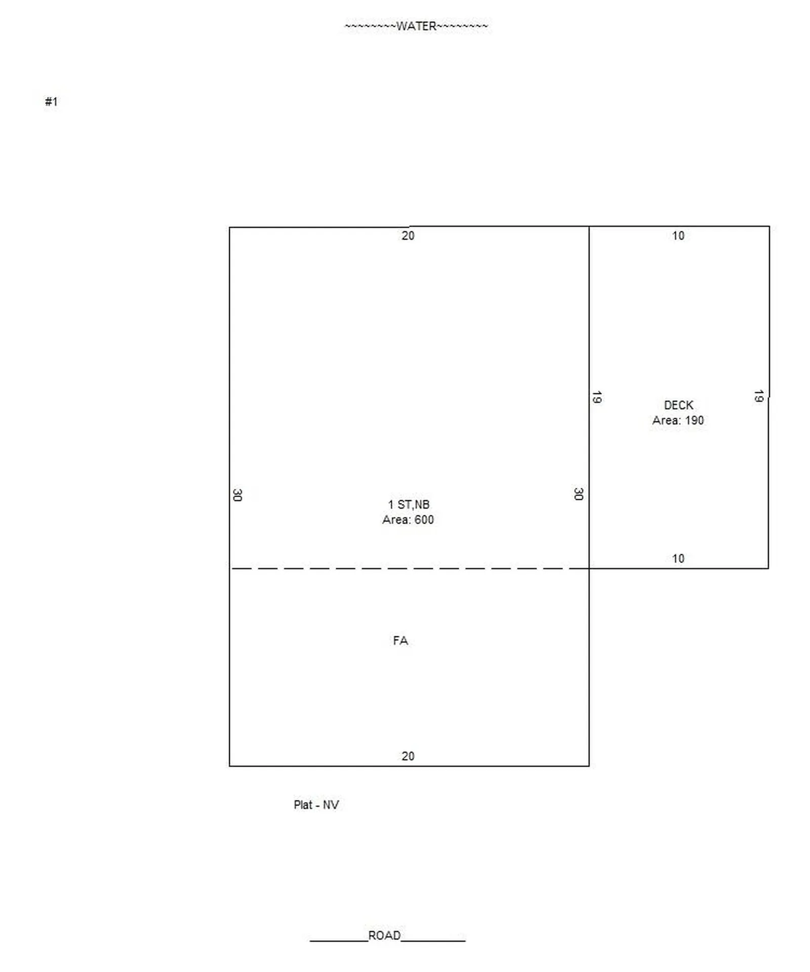
Property Details
Basic Information
- Property Type: Single Family
- MLS Number: 5049822
- MLS Status: Active
- Lot Description: Lake Access, Lake Frontage, Lake View, Lakes, Sloping, Water View, Waterfront
- Acreage: 0.22
- Foreclosure: No
- Latitude: 43.453072
- Longitude: -70.964061
Building
- Property Style: Cabin
- Square Feet: 600
- Year Built: 1970
- Zoning: residential
- Stories: 2
- Roof: Asphalt Shingle
- Building Construction: Wood Frame
- Foundation: Concrete
Location
- Town: Lebanon
- State: ME
- Zip: 04027-3231
Interior Features
Bedrooms
- Bedrooms: 3
Bathrooms
- Bathrooms: 1
- Full Baths: 1
Basement
- Basement: Concrete, Concrete Floor, Walkout
Exterior Features
Featues
- Driveway: Dirt
Utilities and Appliances
Utilities and Appliances
- Heat System: Forced Air
- Sewer: On-Site Septic Exists, Private, Septic
- Water: Dug Well



























